Home Categories Send inquiry

Assembly Line with Working Bench at Two Sides

Product Introduction

This type conveyor line for electronics is also named conveying table,belt lcd panel assembly line,assembly line table, assembly line workable. HDL-B3 assembly line is suitable for battery pack assembly line, CCTV assembly line,electronics assembly table, which mainly green PVC belt conveyor, green pvc assembly line, green belt conveying, power conveyor,pvc flat conveyor belt systems. There is one running conveyor and products parts are moving on the belt conveyor, belt conveyor systems. Operators are sitting at two sides of the assembly line, they do the assembling jobs on workbench, which greatly improves the production efficiency. The assembling table material is stainless steel material. The exhaust system will be set for soldering. This conveying table,belt lcd panel assembly line,assembly line table, assembly line workable can be added air compressor air pipe, lamps, hanger for screwdrivers, products processing pocket structure, storage shelf, working table, sockets.  This moving assembly line can be used for phone assembly line, phone production line,rice cooker assembly line, sockets assembly line, solar panel assembly line...

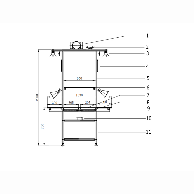
Product details Display

Frame material option 1:

aluminum profiles(thickness 1.5mm)

Frame material option 2:

carbon steel(thickness 1.5mm) with powder coating treatment

Running belt:

Good quality for green PVC anti static belt

Motor:

Good quality motor will be used for the belt conveyor assembly line. The motor brand is CPG gearing motor.

Inverter:

JET brand inverter to be used to control the conveyor belt running speed, variable speed.

Working table and storage shelf material:

We use 18mm thickness polywood covered with 2mm thickness anti static green pvc.

Work tables can be placed at two sides of the assembly lines

Work tables can be long work bench and fit at two sides of the assembly lines

Working table and storage shelf material can be changed to stainless steel material.

Lights:

We use engergy saving LED lights with FSL brand.

Package:

For container shipments, we use plastic film or pallet to pack the assembly line.

Package:

For LCL shipments, we use export wooden case to pack the assembly line.

Power control panel box:

There are clear button indication to show the operation, it is easy and safety to handle the belt conveyor assembly line

Belt conveyor assembly line standard design as below

HDL-B3

HDL-B5

HDL-B6

HDL-B7


Assembly Line with Working Bench at Two Sides Related Video: